Many projects
-
The quality of your work is always a treat to the eyes.

-
thank you
-
this complicated project is finished:
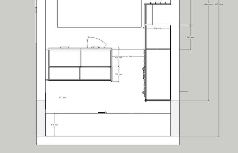
before:


sketchup:



sketchupdiffusion:


finished:


-
-
-
Bravo, the shadows and light balance blowing my mind.
-
-
and another colorset:





-
this is the one, the cusomer ordered:




I will show you the results next year
-






-




-
You work wonders in tight spaces.
-
-
another concept:



-
and a small space at the entrance:


-
Not sure about that bed for Eagles, might end up with concussion for the small humans.
-
Are the units you install custom made to suit tight spaces?
I've a tiny clothes airing room at home and I can never source storage solutions to fit. Anytime I see your stuff I always wonder where you source the units/cabinets
-
@Rich-O-Brien Yes, all the furniture is custom-made. Here are some examples of small bathrooms and utility rooms:
-
a building in Mannheim, that I modelled in sketchup and some parts with meshyAI. render made in Nano Banana, video made with Midjourney



Google Maps
Find local businesses, view maps and get driving directions in Google Maps.
Google Maps (www.google.com)
-
Wonderful work – a great building too! – I would love to learn more about the SkUp process, e.g. how the AI model components are ‘connected’ to the SkUp model (only if that's okay with you).
Again: Great!
Hello! It looks like you're interested in this conversation, but you don't have an account yet.
Getting fed up of having to scroll through the same posts each visit? When you register for an account, you'll always come back to exactly where you were before, and choose to be notified of new replies (either via email, or push notification). You'll also be able to save bookmarks and upvote posts to show your appreciation to other community members.
With your input, this post could be even better 💗
Register LoginAdvertisement




















